
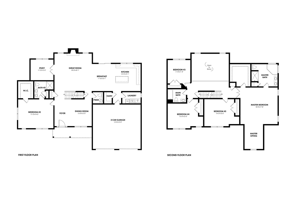
The Breckenridge II embraces craftsman charm and modern design within 3,770 sq. ft. of living space, featuring five or six bedrooms, a soaring two-story great room, and a main-floor junior suite for guests. The elegant master suite includes a sitting area, spa-like ensuite, and walk-in closet, making this model perfect for families who value both beauty and function.
Timeless craftsmanship meets modern sophistication in the Breckenridge II — a 3,770 sq. ft. home that combines spacious design with warm, inviting character. With your choice of five or six bedrooms and up to 4.5 baths, this flexible layout is perfect for growing families and those who love to entertain.
From the moment you step inside, the Breckenridge II welcomes you with natural light, open spaces, and thoughtful design. The open-concept entertainment area seamlessly connects the kitchen, dining, and two-story great room, creating an ideal setting for both family gatherings and quiet evenings at home.
A main-floor junior suite offers a comfortable retreat for guests or in-laws, while an adjacent study provides the perfect space for a home office or creative studio.
Upstairs, the master suite is a private sanctuary, complete with an expansive walk-in closet, a spacious sitting area, and a spa-inspired ensuite bath with elegant finishes. The remaining bedrooms and bathrooms are tucked away for privacy and comfort, giving everyone in the household a place to unwind.
The Breckenridge II offers the ideal blend of charm, space, and modern functionality. Whether you’re hosting guests, working from home, or simply enjoying a peaceful evening with family, this home delivers comfort and style in every corner.
Our team of experienced professionals is dedicated to delivering the very best home to our customers.
We offer competitive and affordable pricing without skimping on quality, ensuring that you get the best value for your money.
With our experience in building homes in the Poconos and Lehigh Valley, we are the go-to home building experts for residents in PA.
Your satisfaction is our top priority. We stand by our work, providing support long after the project is completed.

Our home building team is ready to provide you with top-notch craftsmanship and expert advice. For more information about scheduling a consultation to begin your home project, please contact us below today. We look forward to speaking with you about your dream home!