The Aspen I

The Aspen I - Signature Valley Homes

The Aspen I

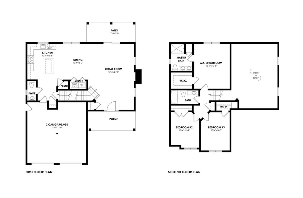
At 1,801 sq. ft., the Aspen I is a perfect blend of comfort and style, offering three or four bedrooms, an open-concept great room, and a bright eat-in kitchen. The covered patio extends living space outdoors, while the second-floor master suite provides a private haven with an ensuite bath and walk-in closet.

Classic design meets modern living in the Aspen I — a beautifully balanced 1,801 sq. ft. home that blends traditional charm with contemporary finishes. Offering flexible three- or four-bedroom layouts, this thoughtfully designed plan is ideal for young families or those looking to downsize without compromising on comfort or style.

Main Level

The open main floor welcomes you with a spacious great room, perfect for family gatherings or entertaining friends. It flows naturally into the bright, eat-in kitchen, featuring contemporary fixtures, modern appliances, and plenty of space for casual dining. A covered patio extends your living area outdoors — the perfect setting for morning coffee, quiet evenings, or al fresco dining under the stars.

Upper Level

Upstairs, all bedrooms are thoughtfully arranged for privacy and relaxation. The primary suite features a large walk-in closet and a private ensuite bath, offering a retreat-like atmosphere after a long day. Additional bedrooms provide flexibility for children, guests, or a home office, giving this layout the versatility today’s families need.

The Aspen I Floorplan - Signature Valley Homes

Additional Features

  • 1,801 sq. ft. of living space
  • 3–4 Bedrooms / 2.5 Baths
  • 2-Car Garage
  • Open-concept great room and eat-in kitchen
  • Covered outdoor patio for entertaining
  • Spacious master suite with walk-in closet and ensuite bath
  • Charming Craftsman architecture with modern finishes

The Aspen I delivers the perfect blend of comfort, functionality, and curb appeal. With its inviting spaces, elegant details, and family-friendly design, this home makes everyday living effortlessly beautiful.

Get Started

What We Offer

Expert Craftsmanship

Our team of experienced professionals is dedicated to delivering the very best home to our customers.

Competitive Pricing

We offer competitive and affordable pricing without skimping on quality, ensuring that you get the best value for your money.

Trusted in PA

With our experience in building homes in the Poconos and Lehigh Valley, we are the go-to home building experts for residents in PA.

Satisfaction Guaranteed

Your satisfaction is our top priority. We stand by our work, providing support long after the project is completed.

Signature Valley Homes Logo - Medium

Get Started Today!

Our home building team is ready to provide you with top-notch craftsmanship and expert advice. For more information about scheduling a consultation to begin your home project, please contact us below today. We look forward to speaking with you about your dream home!

Name
Hello there